森からはじまる、
小さな家。

房総フォレストリビング
  • 2025.07.15 
    募集サイトをオープンしました。

CONCEPT

自然とつながる
リビング

この場所を「フォレストリビング」と名付けたのは、まさに森の中のリビングルームのような感覚がここにはぴったりだったから。広いウッドデッキを設けて家具を並べれば、そこはアウトドアのリビングのよう。大きな樹がそこここにあり、その枝や葉が心地いい木陰を落としています。かなりたくましい樹木もあるから、ハンモックやブランコを吊るしたりもできそうです。
自然とつながるリビング

イメージしたのは
「カップ・マルタンの
休暇小屋」

海の近くの森の中という環境で想起したのは、20世紀の巨匠建築家ル・コルビュジエが人生最後に過ごした家。カップ・マルタンの海辺の近くに建つ広さ4坪ほどの小さな家で、コルビュジエ夫婦は静かな余生の暮らしを楽しみました。
ミニマムでコンパクトな空間を中心として、いろいろデッキや、小さな離れを足してゆける、拡張性のある家を計画しました。
イメージしたのは「カップ・マルタンの休暇小屋」

森を守りながら
暮らし方の自由を
手に入れる

森の景観を守りたいから、あえて今回は建築条件付き土地として売り出します。一般的な宅地分譲だと伐採抜根し造成し、結局何もない区画での売出しになってしまいます。けれどここに住む人は敷地内の木々、森全体を感じながら暮らすことができます。建築条件付き土地として販売されることで、フォレストリビングの世界観は崩れることなく、森を守りながら快適な暮らしの自由を手にすることができます。
森を守りながら暮らし方の自由を手に入れる

LOCATION

東京から
意外と近い房総

九十九里浜の南端に位置する、自然に恵まれたエリア。全国有数のサーフスポットとして知られる一宮町と隣接しており、サーフィン文化の影響を色濃く受けた地域です。敷地は海から車で約10分の高台に位置し、別荘地として開発された区画にあります。標高があるため、津波の心配もありません。
交通アクセスも良好で、最寄りの上総一ノ宮駅まで車で約10分。駅から特急列車を利用すれば、東京駅まで約1時間でアクセス可能です。
東京から意外と近い房総

ZONING

鳥瞰図
  • dummy03
    フォレストリビング全景。森の中に、適度な距離感で立っている家々
  • dummy04
    サニタリー棟のサウナは、住民がシェアして使える
  • dummy04
    暮らしが建物の周辺に拡張している
  • dummy03
  • dummy04
  • dummy04
区画割
販売区画は区画①から区画⑤になります。
号地
土地面積
土地価格
区画①
309.43㎡
(うち31.39㎡地役権設定)
998万円
区画②
337.72㎡
(うち59.56㎡地役権設定)
1,095万円
区画③
308.80㎡
(うち43.60㎡地役権設定)
975万円
区画④
305.73㎡
(うち41.89㎡地役権設定)
895万円
区画⑤
316.19㎡
(うち79.02㎡地役権設定)
990万円
※各区画の土地価格には、共有施設(共有地及びサニタリー棟)の持分1/5が含まれております。
※地役権……本分譲地では、お客様同士で地役権設定契約を締結頂き、区画内一部に地役権を設定し、共用通路部分を設けます。

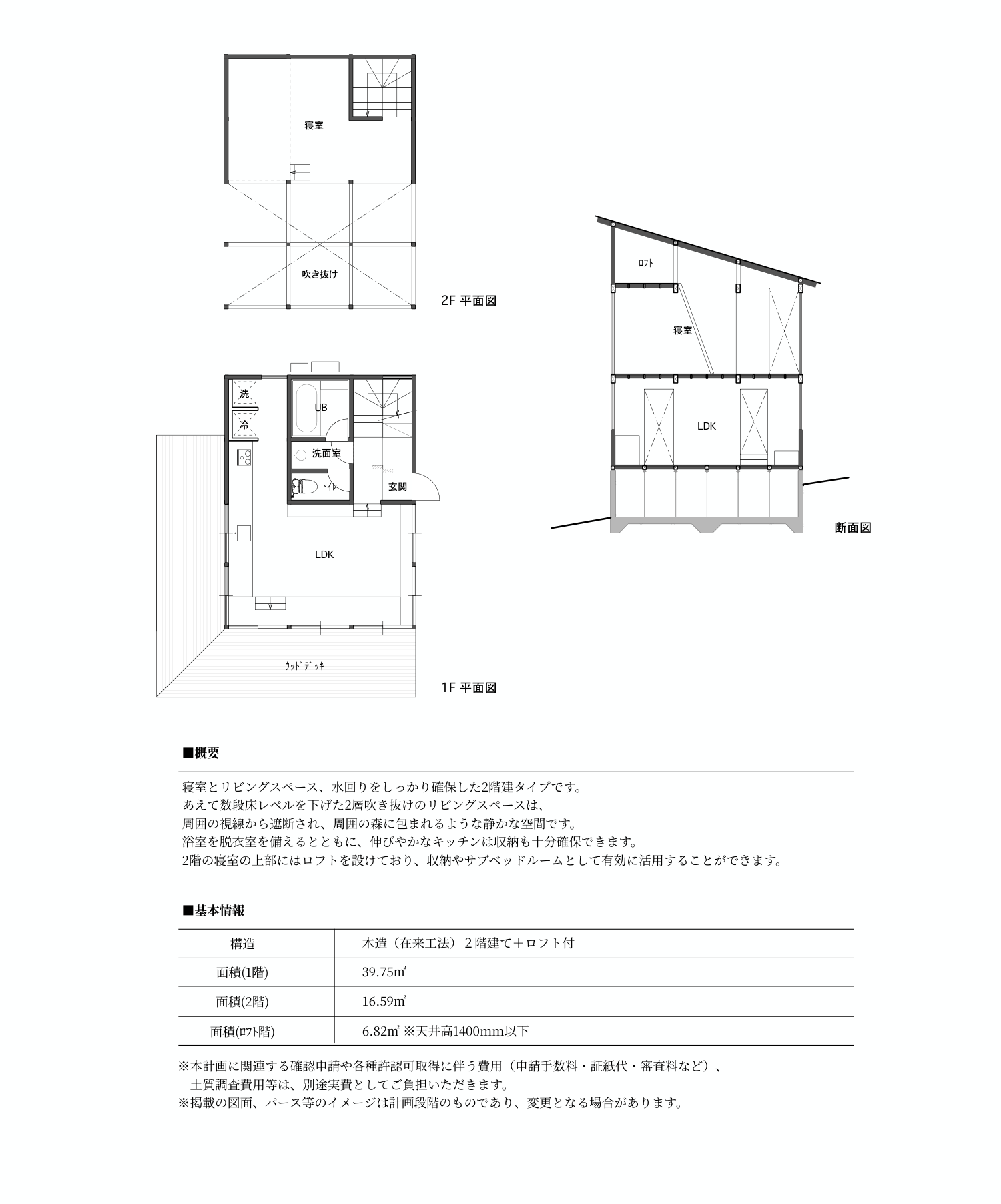
HOUSING
TYPE

ご購入いただいた区画にはTYPE A、TYPE Bの小屋と、オプションユニットを組み合わせて、あなた好みの家をつくることができます。
TYPE A
Type-A
TYPE B
Type-B
OPTION
オプション
  • 母屋からつながるデッキは、屋外のリビング
  • デッキでは、手軽に、日常的にバーベキュー
  • リビングからロフトを見上げる
  • 小屋を増設すれば、リビングを拡張できる
建物価格は参考です。最終的な取得費用は、お客様の方で選んでいただいた家屋(Type A & Type B & オプションユニットを組み合わせてつくるオリジナルな住宅)に対してお見積を取得いただき、設計費等の費用を加えて確定となります。

STEP

  • 1. 区画を選ぶ
  • 2. 建物の組み合わせを選ぶ
  • 3. オプションを選ぶ
「房総フォレストリビング」
お引渡しまでのフロー
契約(土地/設計)
3か月以内
工事請負契約
約3か月
土地決済引き渡し
※着工時期はご契約順に確定となります。土地お引渡後、着工までお待たせする場合もございますのでご了承ください。
1〜3か月
※着工時期はご契約順に確定となります。土地お引渡後、着工までお待たせする場合もございますのでご了承ください。
工事着工
約6か月
工事完了
お引渡し

土地売買契約から建物引渡まで、最短でおよそ1年強のスケジュールを想定しています。
※スケジュールは目安であり、行政指導、建築確認申請、融資の手続き、工期等に不確定な要素があるため、上記から変更が生じる場合があります。

FAQ

建築と景観
A. 景観維持のため、共用地のみならず各区画内についても、組合の合意を得ない限り伐採はできません。ただし、低木(樹高1.8m以下)はこの限りではありません。
A. プランを組合に諮り、合意を得たものは可能です。なお、今回用意しているオプションによる増築や改修であれば組合諮問の必要はありません。
A. 本プロジェクトは、建築条件付き土地契約のため、原則、基本プラン前提です。
A. 管理規約内の建物ガイドラインを遵守したプランで、組合の合意を得たものは可能です。
契約、費用について
A. ウェブサイトに記載されている価格を合計して頂ければ、おおよその金額感を把握頂けます。
A. 本件土地売買契約は、契約締結と同時に売主との間で建築設計委託契約が成立し、かつ契約締結後3ヶ月以内に売主指定の施工会社との間で建築工事請負契約が成立することを停止条件として効力を生じることとなります。期限までに当該2契約が成立しなかった場合には、土地売買契約の無効が確定し、受領済みの手付金等は全額無利息にて返還いたします。
その他
A. いすみ市のハザードマップにおいては、本地上には区域指定はございません。詳しくは行政機関にお問い合わせください。

ACCESS

ACCESS

所在地:
〒299-4501
千葉県いすみ市岬町椎木3180-1
※お車でお越しのお客様は上記の住所をカーナビに設定の上お越しください。


最寄り駅:
・上総一ノ宮駅(特急停車駅、車で約15分)
・東浪見駅(車で約10分)
・太東駅(車で約10分)
物件概要
広告主の名称または商号
株式会社スピーク
広告主の事務所の所在地
東京都新宿区下落合3-14-16目白センター3階
広告主の事務所の電話番号
03-5988-7123
広告主の宅建業法による免許番号
東京都知事(5)第84251号
所属団体名及び公正取引協議会加盟事業者である旨
公益社団法人東京都宅地建物取引業協会会員、公益社団法人首都圏不動産公正取引協議会加盟
取引態様
売主
物件の所在地
千葉県いすみ市岬町椎木字長坂台
交通
JR外房線「太東」駅まで徒歩25分
総区画数
5区画
販売区画数
5区画
土地面積及び私道負担面積
305㎡〜337㎡
■私道負担なし。■共有地(465㎡)あり。全区画にて各々1/5ずつの持分を共有して頂きます。なお、共有地には一部、南側隣接地のための配管埋設を目的とした承役地地役権が設定されております。
地目
雑種地
用途地域
無指定
建ぺい率(%)
60
容積率(%)
200
道路幅員
5.3m(認定幅員)
主たる設備等の概要
水道:公営水道、汚水:浄化槽、雨水:浸透式、ガス:プロパンガス、電気:東京電力 ※電気:他の小売事業者の選択も可能です
土地価格
895万円(1区画)~1,095万円(1区画)
維持管理費
■本分譲地における共有施設・共用地の維持管理については、予め設けられた管理規約に基づき、お客様皆様による自主管理となります。一部を外部委託とする場合、管理費の目安は以下の通りです。
管理費(月額):8,000円
その他の重要な事項
■共有地上には、既存建物(サニタリー棟)が存在し、サウナ・シャワー・トイレが設置されています。共有地同様、全区画にて各々1/5ずつの持分を共有して頂きます。■本分譲地では、お客様同士で地役権設定契約を締結頂き、区画内一部に地役権を設定し、共用通路部分を設けます。■本件土地は傾斜地を含みます(全区画ともに傾斜地割合100%)。 ■徒歩の所要時間は1分=80mで算出し、切り上げております。
建築条件
■契約の効力発生要件(停止条件)について■本件土地売買契約は、契約締結と同時に売主との間で建築設計委託契約が成立し、かつ、契約締結後3ヶ月以内に売主指定の施工会社との間で建築工事請負契約が成立することを停止条件として効力を生じることとなります。期限までに当該2契約が成立しなかった場合には、土地売買契約の無効が確定し、受領済みの手付金等は全額無利息にて返還いたします。■掲載の図面、パース等のイメージは計画段階のものであり、変更となる場合があります。
取引条件の有効期限
2025.10.31
情報登録日
2025.7.14
次回更新予定日
2025.11.1
© Forest Living All rights reserved.
売主/設計
株式会社スピーク
代表者:林厚見 / 吉里裕也
東京都新宿区下落合三丁目14番地16
宅建業免許番号:東京都知事(5)第84251号
売主代理
株式会社ビームスファクトリー
代表者名:奥野 雅也
千葉県茂原市御蔵芝1761
宅建業免許番号:千葉県知事 (2)第16860号
設計
株式会社オープン・エー
代表者:馬場正尊
東京都中央区日本橋馬喰町2-7-15
ザ・パークレックス日本橋馬喰町7階
設計/施工
株式会社ビームスファクトリー
代表者:奥野 雅也
千葉県茂原市御蔵芝1761
千葉県知事許可(般-4)第51784号
scroll
TOP